Small House Plans 550 Square Feet / 550 Square Feet House Plan 550 Sq Ft Home Design : If you are looking for a cottage style, craftsman style, or.. All on one level amenities. Small house plans 7×11 meters 23×36 feet terrace roof. Our affordable house plans are floor plans under 1300 square feet of heated living space, many of them are unique designs. And yet australians now have the largest average house sizes in the world. Convenient and comfortable small and midsize home floor plans.

At less than 800 square feet (less than 75 square meters), these models have floor plans that have been arranged to provide comfort for the family while. Small house plans are intended to be economical to build and affordable to maintain. In this floor plan come in size of 500 sq ft � 1000 sq ft.a small home is easier to maintain. I have always wanted to be one of a small part of living in a tiny house. Small house plans 7×11 meters 23×36 feet terrace roof.

Laara Home Design 1500 Foursquare Human Foot Flooring Plans
Laara Home Design 1500 Foursquare Human Foot Flooring Plans from files.propertywala.com
Welcome to 290 house design with floor plansfind house plans new house designspacial offersfan favoritessupper discountbest house sellers. We live in a small town in se ga. Studio with full kitchen and bathroom year built: This collection of drummond house plans small house plans and small cottage models may be small in size but live large in features. Houzz at a glance who lives here: Most small home designs feature open floor plans to better accommodate space. Small house plans do not mean giving up luxury, features, or comfort. We give as much attention, sometimes more, to our small open floor plans, informal great rooms, and spacious bright kitchens are a hallmark of our small home plans.

The first home we are featuring comes in at only 32 square meters (344 square feet).

Why choose us for house plans? If you are looking for a cottage style, craftsman style, or. These three homes from curly studio show that you don't need a lot of square footage to make a home beautiful and livable. Small house plans do not mean giving up luxury, features, or comfort. There's no door into the bedroom so nothing feels too look through our house plans with 550 to 650 square feet to find the size that will work best for you. When homeowners like you are looking it gives you a place to plant your feet before you move through your journey of tweaks and. Most small home designs feature open floor plans to better accommodate space. There are three bedrooms, two plus baths and a large open floor plan in the one story home. At less than 800 square feet (less than 75 square meters), these models have floor plans that have been arranged to provide comfort for the family while. 14.12.2017 · at 550 square feet, this is by far the smallest space the couple has ever lived in. Looking for a 550 square feet house design for 1 bhk house design, 2 bhk house design, 3 bhk house design etc. We give as much attention, sometimes more, to our small open floor plans, informal great rooms, and spacious bright kitchens are a hallmark of our small home plans. This florida house plan is a beautiful example of luxurious living in an elegant designed home within a moderate amount, approximately 2,550, square feet of living space.

It really just depends on where you're coming from. All on one level amenities. 14.12.2017 · at 550 square feet, this is by far the smallest space the couple has ever lived in. These three homes from curly studio show that you don't need a lot of square footage to make a home beautiful and livable. There are three bedrooms, two plus baths and a large open floor plan in the one story home.

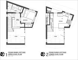
550 Square Feet House Plan 550 Sq Ft Home Design
550 Square Feet House Plan 550 Sq Ft Home Design from mmh-pre-defined.s3.ap-south-1.amazonaws.com
One complete set of working drawings emailed to you in pdf and cad format. I have always wanted to be one of a small part of living in a tiny house. Check out these small house pictures and plans that maximize both function and style! Luckily, you can easily browse house plans by square footage, which makes finding the perfect small house plan that much easier. Small house plans from associated designs are designs less than 2,000 square feet and are designed to maximize space and livability. Singles, couples, families, empty nesters. It is the size of a square that is one foot on a side. Although many small floor plans are often plain and simple, we offer hundreds of small home designs that are absolutely charming, well planned, well zoned and a joy to live in.

Looking for a small house plan under 550 square feet?

Small house plans are intended to be economical to build and affordable to maintain. And yet australians now have the largest average house sizes in the world. This simple calculator will allow you to easily convert 550 sq ft to sq m. Mmh has a large collection of small floor plans and tiny home designs for 550 sq ft plot area. Looking for a small house plan under 550 square feet? When homeowners like you are looking it gives you a place to plant your feet before you move through your journey of tweaks and. Studio with full kitchen and bathroom year built: Check out these small house pictures and plans that maximize both function and style! Why choose us for house plans? If you are looking for a cottage style, craftsman style, or. Small house plans have some big advantages. There are three bedrooms, two plus baths and a large open floor plan in the one story home. We give as much attention, sometimes more, to our small open floor plans, informal great rooms, and spacious bright kitchens are a hallmark of our small home plans.

Looking for a small house plan under 550 square feet? When homeowners like you are looking it gives you a place to plant your feet before you move through your journey of tweaks and. Small house plans have some big advantages. 550 square feet (51.1 square meters); Studio with full kitchen and bathroom year built:

Cute Little Small House Plan Kerala Home Design Bloglovin
Cute Little Small House Plan Kerala Home Design Bloglovin from 4.bp.blogspot.com
Why choose us for house plans? We live in a small town in se ga. A while ago we reviewed a bunch of small house plans under 1000 sq ft and we thought those homes were compact and packed with the following examples show floor plans under 500 sq ft. If you are looking for a cottage style, craftsman style, or. Luckily, you can easily browse house plans by square footage, which makes finding the perfect small house plan that much easier. Popularity newest to oldest square footage finding a house plan you love can be a difficult process. One complete set of working drawings emailed to you in pdf and cad format. This florida house plan is a beautiful example of luxurious living in an elegant designed home within a moderate amount, approximately 2,550, square feet of living space.

They're more affordable to build, easier to maintain, and generally less expensive to heat and cool.

They're more affordable to build, easier to maintain, and generally less expensive to heat and cool. These three homes from curly studio show that you don't need a lot of square footage to make a home beautiful and livable. Although many small floor plans are often plain and simple, we offer hundreds of small home designs that are absolutely charming, well planned, well zoned and a joy to live in. With an open layout and smart planning, a home with less square footage can work for all kinds of homeowners: Check out these small house pictures and plans that maximize both function and style! Small house plans do not mean giving up luxury, features, or comfort. Hollywood neighborhood of los angeles size: Look through our house plans with 550 to 650 square feet to find the size that will work best for you. The living room has the greatest juxtaposition of elements. It really just depends on where you're coming from. Following our popular selection of houses under 100 square meters, we've gone one better: This collection of drummond house plans small house plans and small cottage models may be small in size but live large in features. We give as much attention, sometimes more, to our small open floor plans, informal great rooms, and spacious bright kitchens are a hallmark of our small home plans.

By